21-23 Pacific St.

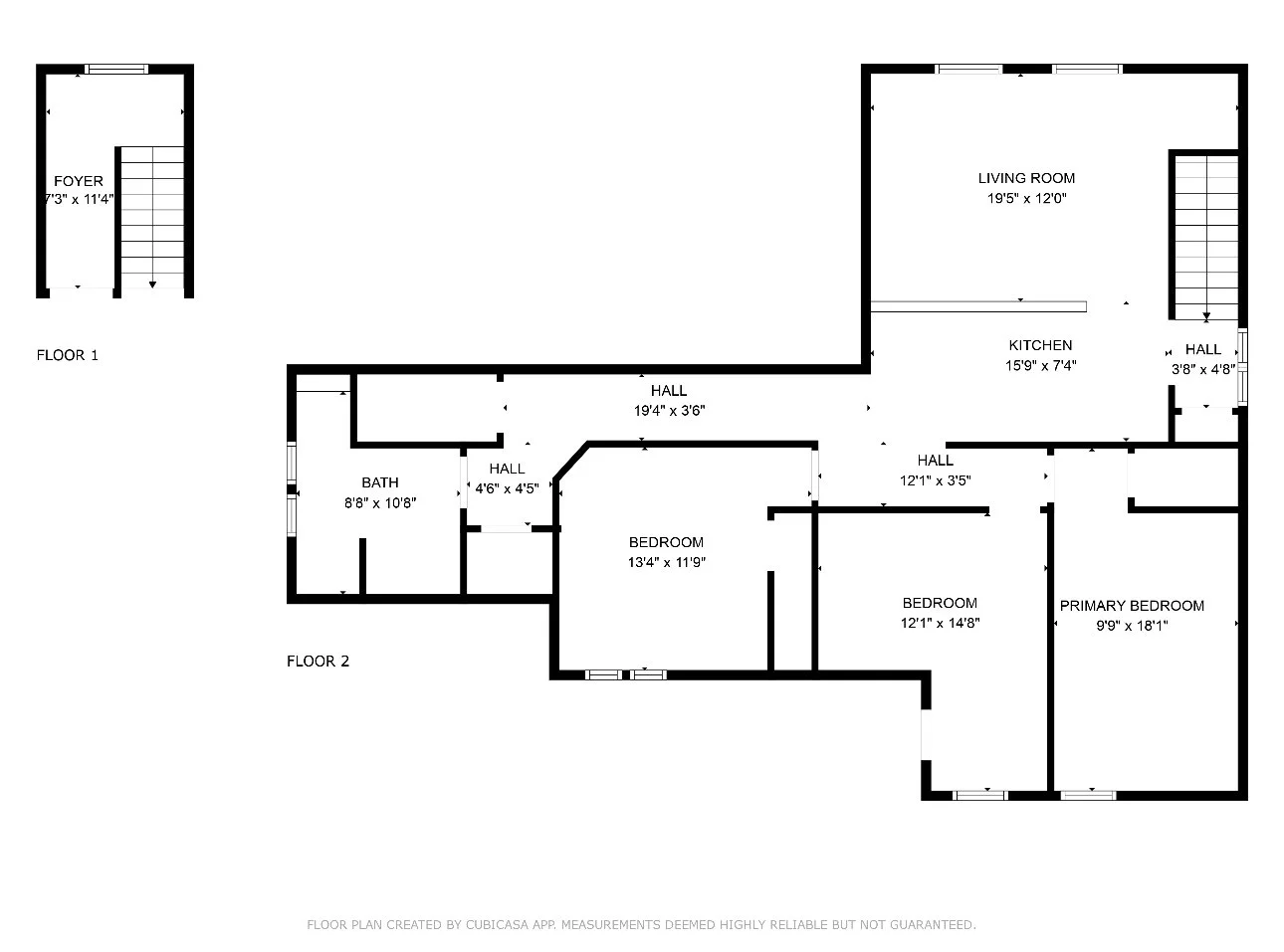
Unit 2

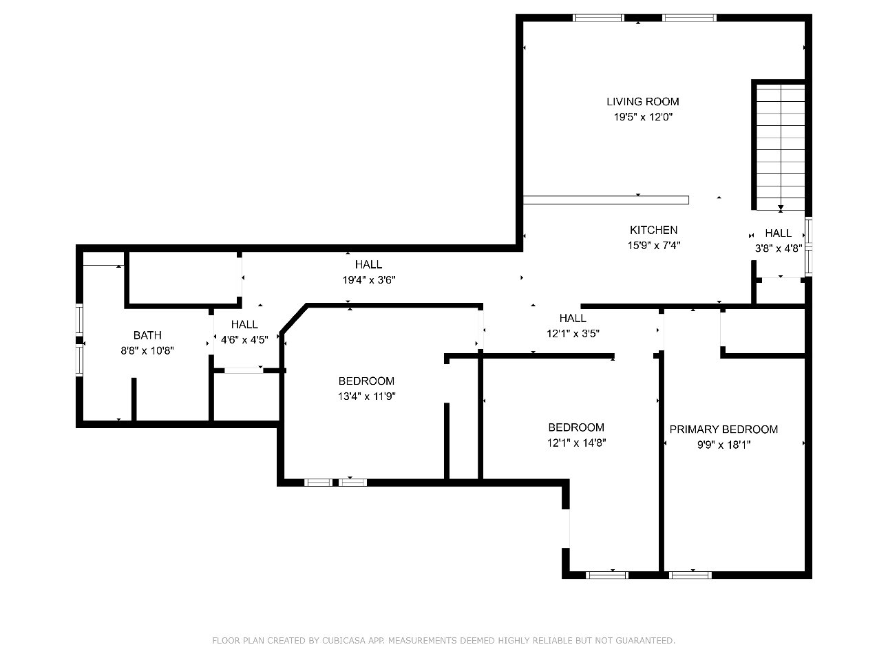
Unit 3